Terreno à venda em condomínio, localizado no bairro Vila Maringá, Jundiaí-SP
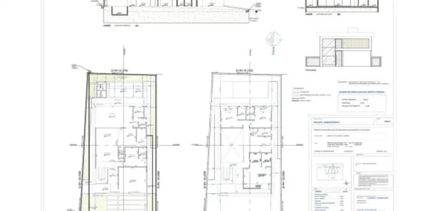
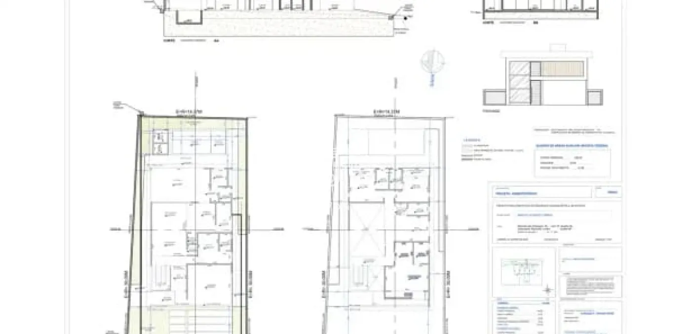
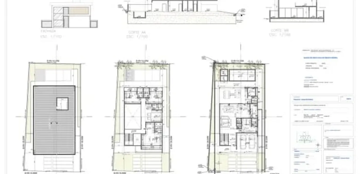
Terreno praticamente plano, com leve declive nos fundos, com planta aprovada no condomínio e na Prefeitura; projeto moderno de 353 m² com 2 vagas cobertas, distribuído em piso térreo com lavabo, salas de estar e jantar integradas, cozinha em conceito aberto, lavanderia, área gourmet com churrasqueira, escritório e 1 suíte, e piso superior com 3 suítes avarandadas (sendo 1 master com closet) além de sala íntima de TV ? imagens do anúncio correspondem ao projeto aprovado.
Condomínio clube com lazer completo, incluindo campo de futebol society, quadra poliesportiva, quadra de tênis e squash, churrasqueira, playground, piscinas (adulto com raias, recreação e infantil), solarium, deck molhado, bar de apoio, spa com sauna, vestiários, fitness center, espaço gourmet, salão de festas, terraço, estacionamento e espaço pet; conta ainda com cabeamento subterrâneo e segurança 24 horas.
Somos uma imobiliária com mais de 40 anos de mercado e com uma vasta experiência na administração de imóveis para venda ou locação.
Contamos com uma ampla opção de imóveis residenciais, comerciais e lançamentos e equipe Mediterrâneo Imóveis é especializada e recebe treinamento exclusivo para melhor te atender.
Ligue e solicite seu atendimento!. ref. 17144 atualizado em 19/03.
| Área total |
|---|
| 454 m² |