Casa com 4 Quartos para Venda, jacaré, Cabreúva, 250m²

R$ 2.200.000

Contatar o anunciante
Prefere ser contatado por
250 m²
4 suítes
4 dormitórios
3 banheiros
4 vagas

Mediterrâneo Imóveis

Código do imóvel no anunciante: V15917

Creci: 22189 J

Empreendimento SOBRADO À VENDA EM CONSTRUÇÃO NO CONDOMÍNIO PHYTUS EM CABREÚVA- SP

Descrição

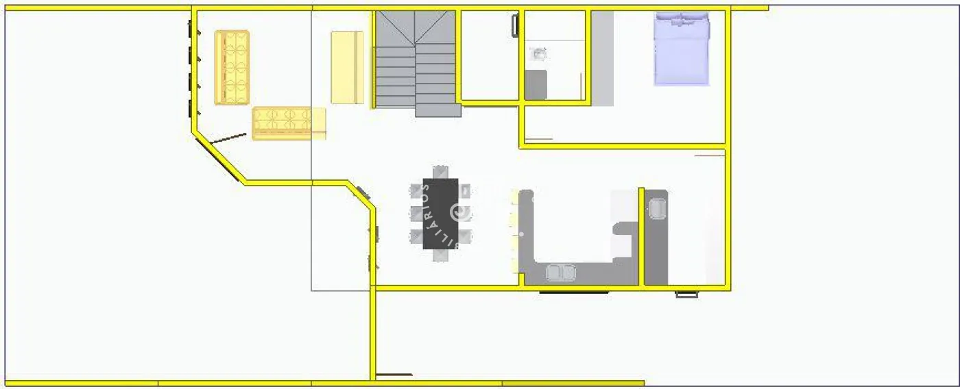
Sobrado à venda no condomínio Phytus no bairro Jacaré em Cabreúva - SP

O imóvel conta com 300m² de construção em um terreno de 250m², contendo no 1 pavimento área de laser com grande sala para recepção, churrasqueira, piscina, escritório e banheiro com box para banho. No 2 pavimento ha sala de estar anexa a sala de jantar e cozinha, área de serviço com parede divisória com acesso a passarela em todo contorno e acesso por escada a área de lazer independente, suíte dos idosos para que estes não precisem subir escadas e garagem para até quatro carros sendo coberto para dois. e no 3 pavimento, 3 suítes, sendo uma delas com banheiro com dois lavabos e closet.
4 infraestruturas para ar condicionados nos quartos com capacidades de 9.000 a 12.000 btu´s e 1 infraestrutura para ar condicionados nas salas com capacidade de 18.000 a 24.000 btu´s.

Condomínio com portaria e segurança 24 horas. Área de lazer, playground, salão de festas, quadra poliesportiva e campo de futebol.

Morar em Cabreúva é uma experiência que combina a tranquilidade do interior com as facilidades de acesso a grandes centros urbanos. A cidade oferece uma infraestrutura de qualidade, com escolas, saúde e transporte acessíveis. Os moradores podem aproveitar a natureza ao ar livre e participar de eventos culturais ao longo do ano. O custo de vida é acessível, e a cidade é uma boa opção para quem busca uma vida mais saudável e comunitária.

Somos uma imobiliária com mais de 40 anos de mercado e com uma vasta experiência na administração de imóveis para venda ou locação.
Contamos com uma ampla opção de imóveis residenciais, comerciais e lançamentos e equipe Mediterrâneo Imóveis é especializada e recebe treinamento exclusivo para melhor te atender.

Ligue e solicite seu atendimento!. ref. 15917 atualizado em 20/02.

Características

Área útil Área total
300 m² 250 m²