Casa Comercial para Locação, Alto da Boa Vista, São Paulo, 365m²

R$ 20.000

Contatar o anunciante
Prefere ser contatado por
365 m²
2 banheiros

Scheid Imóveis

Código do imóvel no anunciante: BV14871

Creci: 16377 J

Empreendimento Galpão Alto da Boa Vista - 365m2 com mezanino 2 banheiros

Descrição

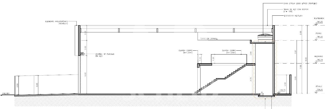
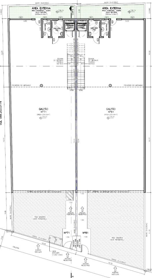
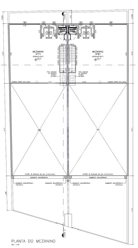
Galpão no Alto da Boa Vista, térreo com 270m2 de vão aberto, mezanino de 98m2 com possibilidade de montar escritórios, banheiro Masculino e Feminino, hidraulica pra copa, portão com altura de 5m FICA PRONTO EM JUNHO 26
Scheid Imóveis, desde 1995 com total transparência e segurança em todos os nossos serviços.

Características

Área útil Área total Ano de construção
365 m² 365 m² 2026